
Призначення
Установка ВОДОГРАЙ В10 призначена для знезараження питної та технічної води ультрафіолетовим (УФ) опромінюванням.
УФ установка оснащується системою хімічного очищення захисних кварцових колб.
УФ установка ВОДОГРАЙ В10 призначена для роботи в автономному режимі без постійного обслуговування.
Забезпечує високу ефективність знезараження питної води підвищеною дозою УФ опромінення, що гарантує повне знищення хвороботворних мікроорганізмів, які перебувають у воді, як-от збудники тифу, холери, гепатиту, ціанобактерій тощо.
Може застосовуватися для знезараження води в системах кондиціонування повітря.
Область використання
Підприємства харчової та фармацевтичної промисловості, комунальні підприємства, водоканали, лікувальні установи та ін.
Вимоги до води, що знезаражується
Вода, що подається на УФ знезараження, має бути очищеною від завислих і нерозчинених речовин, її кольоровість не повинна перевищувати 35 градусів, концентрація заліза не повинна перевищувати 1,5 мг/дм3, рівень мінералізації води не повинен перевищувати 1500 мг/дм3.
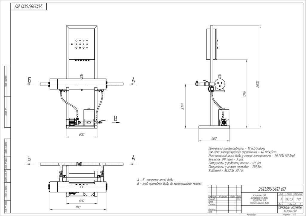
Основні технічні параметри
| Параметр | Значення |
| Номінальна продуктивність, м3/годину | 12 |
| Знезаражуюча доза УФ опромінення за номінальної продуктивності та прозорості води Т10 = 80%, мДж/см2; | 40 |
| Робочий тиск, не більше, МПа (бар) | 1,0 (10) |
| Довжина хвилі УФ випромінювання, нм | 253,7 |
| Ресурс УФ ламп, години | 13000 |
| Кількість УФ ламп, штук | 3 |
| Напруга живлення, В | АС 230, 50 Гц |
| Потужність у робочому режимі (cos ф = 0,96), Вт | 125 |
| Потужність блоку промивання, Вт | 350 |
| Розміри камери знезараження, мм | 1150х235х500 |
| Умовний діаметр патрубків | Ду 50 |
| Відстань між вхідним і вихідним патрубками, мм | 750 |
| Розміри блоку управління, мм | 600х200х800 |
| Вага камери знезараження (без води), кг | 25 |
| Вага блоку управління, кг | 15 |
Ефективність знезараження
Мікробіологічні показники знезараженої води відповідають ДСанПіН 2.2.4-171-10 “Гігієнічні вимоги до води питної, призначеної для споживання людиною”, а також нормативним документам ЄС, що регламентують мікробіологічні показники питної води.
Конструкція
УФ установка складається з камери знезараження, блоку управління і блоку промивки (для очищення захисних кварцових трубок). Камера знезараження являє собою циліндричну камеру, усередині якої розташована бактерицидна УФ лампа. Для захисту від безпосереднього контакту з водою УФ лампу поміщено в захисну трубку, яку виконано з прозорого кварцового скла з підвищеним коефіцієнтом пропускання бактерицидного УФ випромінювання. Корпус камери знезараження та інші частини УФ установки, що контактують з водою, виконані з нержавіючої сталі та інших, стійких до корозії матеріалів, які дозволені Міністерством охорони здоров’я для контакту з харчовими продуктами. Блок керування розміщується безпосередньо на корпусі камери знезараження.
Очищення кварцових колб від органічних і мінеральних речовин, які відкладаються на зовнішній поверхні захисних кварцових колб, здійснюється методом промивання спеціальними миючими засобами.
Управління УФ установкою здійснюється за допомогою блоку управління. Блок управління забезпечує увімкнення та вимкнення УФ ламп, світлову індикацію їх роботи , облік часу роботи УФ установки, контроль наявності води в камері знезараження, а також індикацію необхідності здійснення очищення кварцової колби за допомогою блоку хімічної промивки.
УФ установку оснащено системою автоматичного ввімкнення/вимкнення залежно від протоку води через камеру знезараження, системою контролю працездатності УФ лампи, лічильником ресурсу УФ ламп, системою захисного вимкнення системи електроживлення установки в разі випадкового дотику обслуговувального персоналу до струмоведучих частин УФ установки.
Система дистанційного контролю
УФ установка оснащується системою дистанційного контролю через мережу GPRS, яка забезпечує передачу оперативної інформації про роботу установки на комп’ютер, планшет або мобільний телефон оператора. Що дає змогу здійснювати оперативний контроль за ефективністю знезараження води. Система дистанційного контролю побудована на платформі хмарного сервісу OWEN-CLOUD (aqteck.com.ua)).


